

|
| 產品名稱:網帶烘干機 |
| 產品類型: |
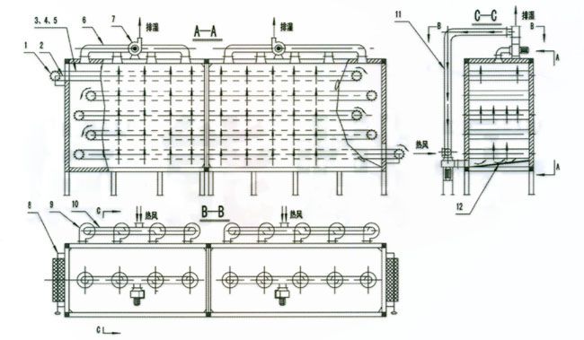
我公司作為烘干行業的領導企業,生產的單層或多層網帶生產線已經為多家食品、藥品、精細化工及工礦企業提供了大小設備近千余套。公司生產設備憑借著優良的質量和及時的售后服務獲得了廣大新老客戶的一致贊譽。 我公司生產的網帶烘干線可分為單層或多層生產線,網帶材質可根據烘干物料品種采用碳鋼、不銹鋼、特氟龍等多種材質,適合于各類食品、茶飲、化工顆粒、催化劑、工礦顆粒、煤球及各種金屬壓球的烘干。 經過近十年的生產經驗的積累和創新開發,我公司網帶生產線具有風道配置合理均勻,風量大溫度均勻,能耗低等特點。 歡迎廣大新老客戶蒞臨檢查指導工作,我公司將竭誠為你提供烘干相關咨詢服務。聯系電話:0536-3161525![]() |
魯公網安備37072402371696